Salon de thé – bar à choux
Le projet : création d’un salon de thé / bar à choux à partir d’un local brut
Ma mission : mission conception et accompagnement au dépôt de la déclaration préalable de travaux
La commande :
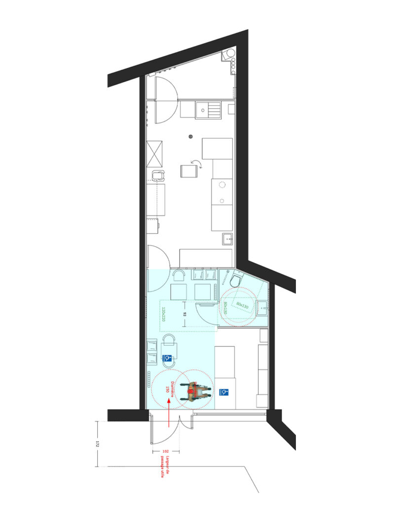
> Concevoir des espaces à la fois fonctionnels, esthétiques et répondant aux normes exigées pour les établissements recevant du public.
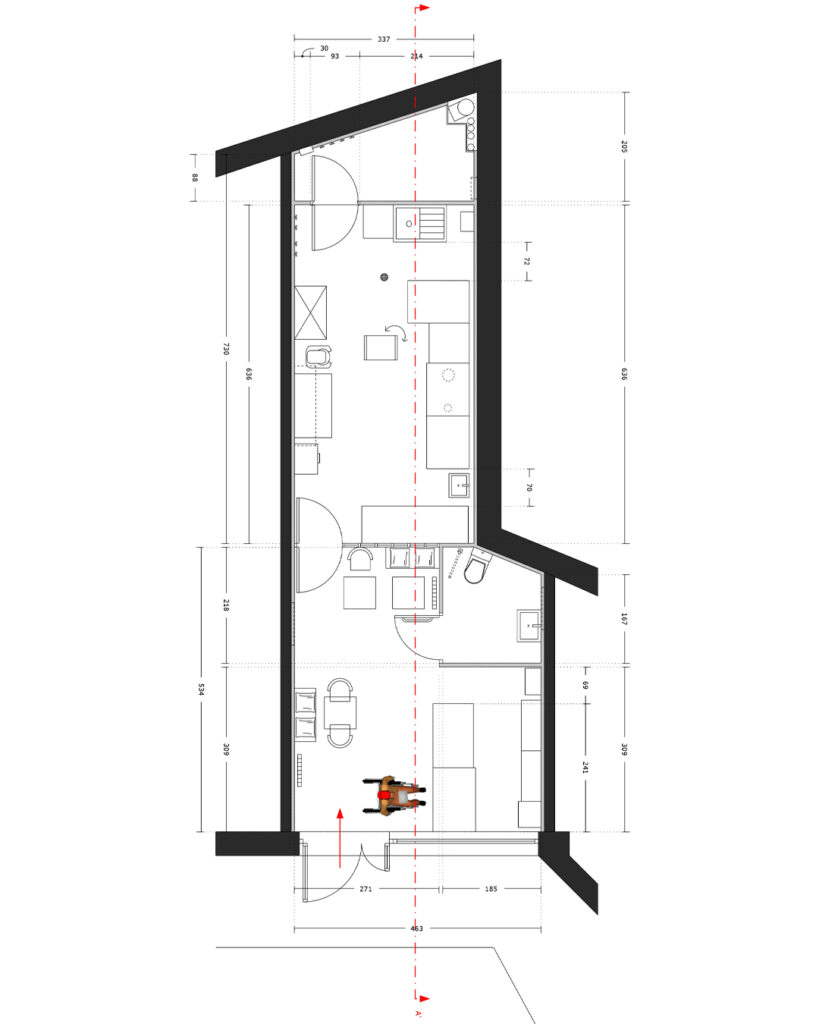
> Réaliser l’ensemble des pièces nécessaires pour le dépôt de la déclaration préalable de travaux : plans, coupes, plans PMR, plan sécurité, notices…
Le résultat :
> Des espaces accueillants et fonctionnels pour un travail quotidien fluide
> Des espaces qui respectent les normes requises pour un ERP notamment pour l’accessibilité aux personnes à mobilité réduite
> Une salle avec comptoir et quelques tables pour le service sur place
> Un WC PMR
> Une cuisine / laboratoire fonctionnelle
> Un espace de stockage pour les matières sèches
> Une décoration colorée, chaleureuse et attractive












